
WELCOME TO YOUR NEW HOME
Make it
HOME
McCormack Home
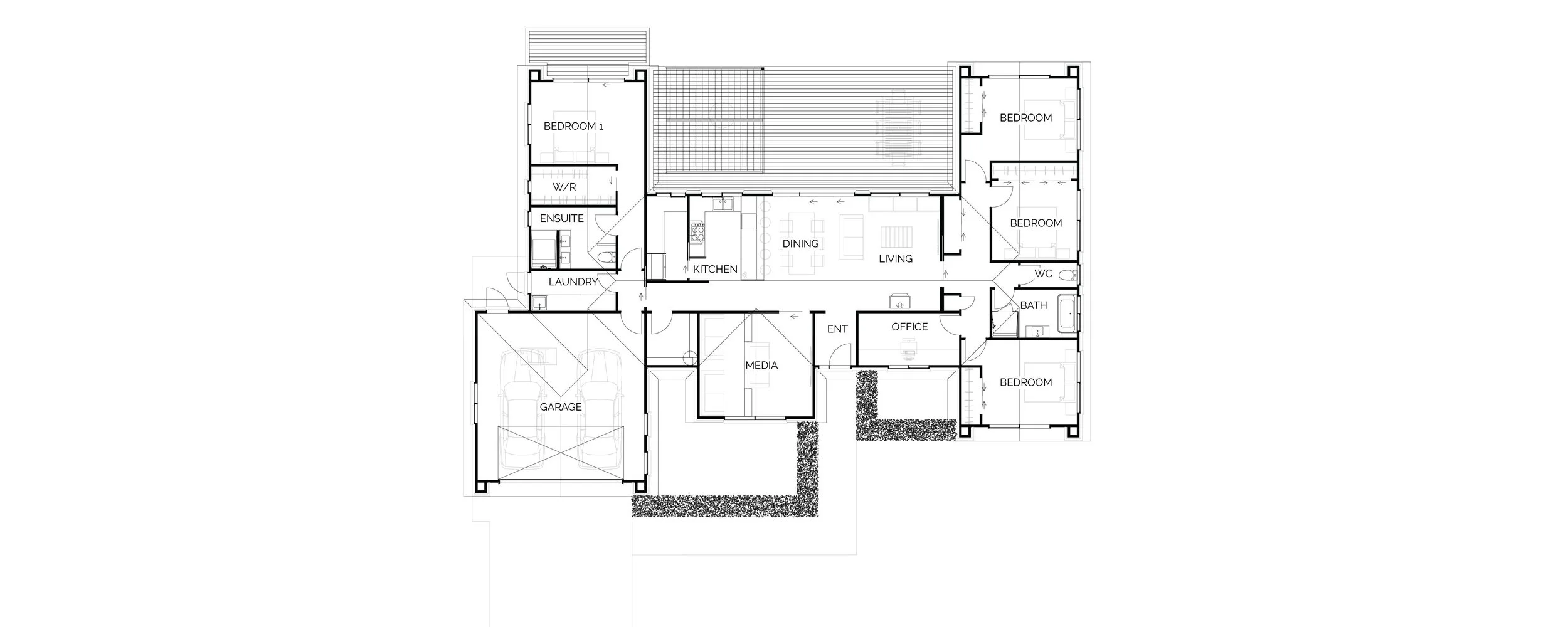
Country Lifestyle Retreat – 240sqm Single-Level Living
This thoughtfully designed 240sqm single-level home embraces the ease of country living with modern comfort. Multiple living spaces create a natural flow for both family life and entertaining, while large windows and open-plan areas connect seamlessly to the outdoors. With four generous bedrooms plus a dedicated office, it offers flexibility for growing families or working from home. The design balances functionality with lifestyle, making it an inviting retreat for those who value space, light, and relaxed rural living.
Your Home
Single Level, Lifestule Home, with a Rural outlook
242sqm of floor area
Double Garage
3 Living spaces with a separate Media Room
4 Bedrooms, Plus Office
Master bedroom, with a long W/R, and spacious Ensuite.
Kitchen, with a large walk-in Scullery

